Hagen:
Frequenzstarke Ladenfläche in Hagener Innenstadt – ideal für Retail oder Fitness
Objekt-Nr.: 1078

Übersicht

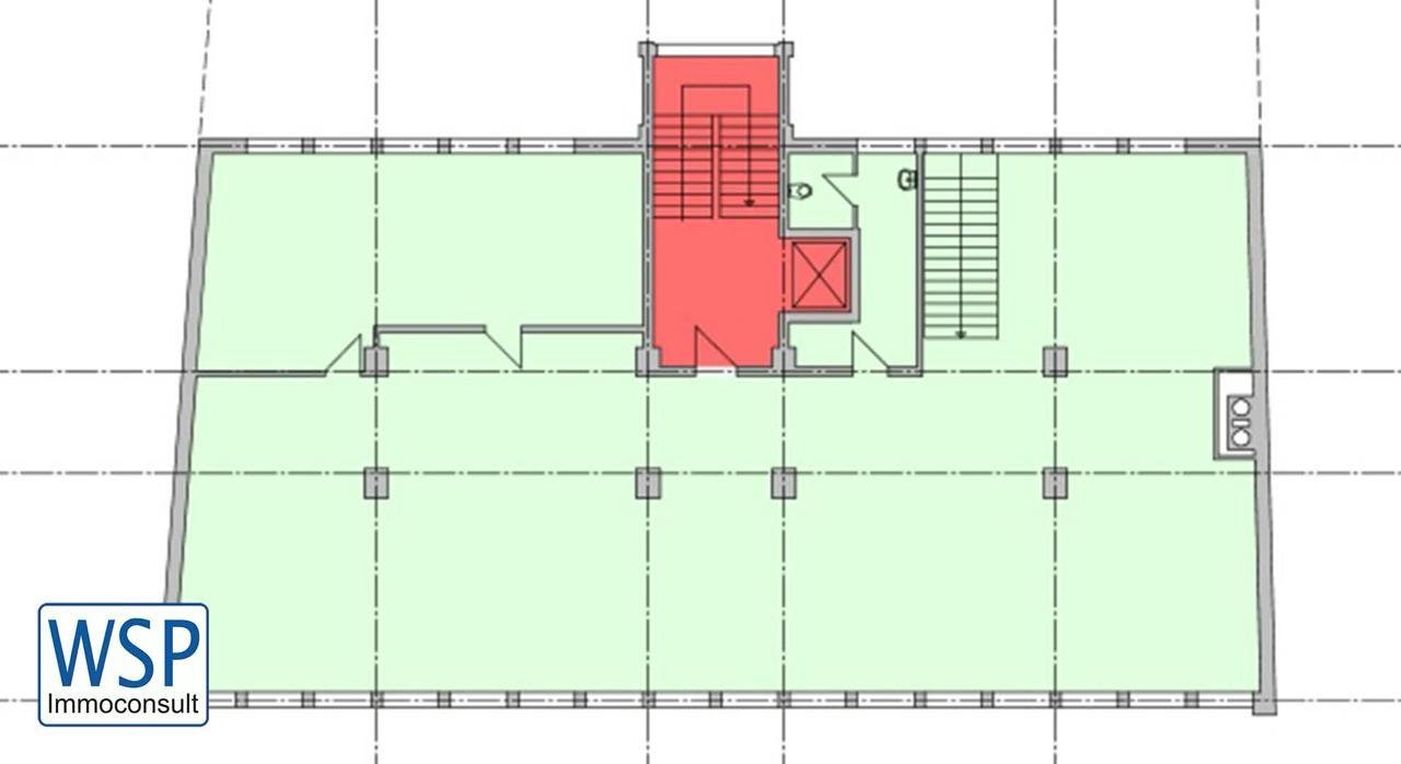
Erdgeschossfläche

Erdgeschossfläche

Erdgeschossfläche

Aufgang zur 1. Etage

1. Etage

1. Etage

Untergeschoss

Garagenhof

Außenansicht

Grundriss 1. OG

Grundriss Erdgeschoss












Mietpreis zzgl. NK:
14 € pro m²
Gesamtfläche ca.:
1.100 m²
Verkaufsfläche ca.:
700 m²
Diese großzügige Einzelhandelsfläche im Erdgeschoss eröffnet Ihnen auf rund 430 m² eine Bühne für starke Konzepte und nachhaltigen Geschäftserfolg. Die klare Struktur und weitläufige Gestaltung bieten ideale Voraussetzungen, um Ihre Marke wirkungsvoll zu inszenieren und Kundenerlebnisse zu schaffen, die in Erinnerung bleiben.
Für wachsende Anforderungen lässt sich die Fläche flexibel erweitern: Das 1. Obergeschoss mit ca. 300 m² kann nahtlos in den Verkaufsraum integriert werden – perfekt für zusätzliche Verkaufsbereiche, exklusive Showrooms, Büroflächen oder effiziente Arbeitsstrukturen im Hintergrund.
Ein weiterer Pluspunkt ist der großzügige Kellerbereich mit ca. 400 m², der Ihnen wertvolle Lagerkapazitäten direkt im Objekt sichert und somit reibungslose Abläufe ermöglicht.
Abgerundet wird dieses Angebot durch PKW-Stellplätze im Innenhof, die eine komfortable Erreichbarkeit gewährleisten.
Der Mietzins bezieht sich nicht auf die Lagerfläche im Untergeschoss.
Lageart: A-Lage
Nebenfläche ca.: 450 m²
Schaufensterfront: 6 Meter
Nebenkosten: 3 € pro m²
Provisionspflichtig: nein
Kaution: 3 Monatsmieten brutto
Letzte Modernisierung/ Sanierung: 2020
Qualität der Ausstattung: normal
Baujahr-Gebäude: 2005
Etagenanzahl: 5
Umgebung: Bahnhof, Einkaufsmöglichkeit
Anzahl der Parkflächen: 2 x Außenstellplatz, pro Stück 50 €
Lastenaufzug: ja
Fahrstuhl: ja
Deckenlast: 500 Kg/m²
Keller: ja
Barrierefrei: ja
Zulieferung: direkter Zugang
Bodenbelag: Fliesen
Zustand: gepflegt
Energieverb. Warmwasser enthalten: ja
Fußweg zu Öffentl. Verkehrsmitteln: 1 Minute(n)
Fahrzeit zum nächsten Hauptbahnhof: 5 Minute(n)
Fahrzeit zur nächsten BAB: 5 Minute(n)
Fahrzeit zum nächsten Flughafen: 50 Minute(n)
Heizung: Fernwärme
Befeuerungsart: Gas
Energieausweistyp: Verbrauchsausweis
Baujahr laut Energieausweis: 2005
Die von uns gemachten Informationen beruhen auf Angaben des Eigentümers bzw. der Eigentümern. Für die Richtigkeit und Vollständigkeit der Angaben kann keine Gewähr bzw. Haftung übernommen werden. Ein Zwischenverkauf bzw. eine Zwischenvermietung und Irrtümer sind vorbehalten.
Unser Käuferservice:
Finanzierungen und Kredite
Vorbereitung der notariellen Abwicklung
Sanierung / Renovierung
Unser Verkäuferservice
Erstellung des Exposés
bebilderte Inserate
diskrete Vermarktung
Markt-Analyse
Bonitäts-Prüfung der Käufer
Schufa & Creditreform Abfrage
Erstellung eines Verkaufsvideos
Wichtiger Hinweis:
Das Geldwäschegesetz (gem. §2 Abs. 1 Nr.10 GwG) vom 29.11.2011 verpflichtet uns, die Identität des Interessenten festzuhalten. Wir bitten Sie daher, sich beim Ersttermin durch ein gültiges Ausweisdokument auszuweisen.
Bei juristischen Personen / Firmen ist der Handelsregisterauszug vorzulegen.
Selbstverständlich werden Ihre Daten diskret behandelt. Für Ihr Verständnis danken wir.
Widerrufsrecht
Sie können Ihre Vertragserklärung innerhalb von 14 Tagen ohne Angabe von Gründen in Textform (z. B. Brief, Fax, E-Mail) widerrufen. Die Frist beginnt nach Erhalt dieser Belehrung in Textform, jedoch nicht vor Vertragsschluss und auch nicht vor Erfüllung unserer Informationspflichten gemäß Artikel 246 § 2 in Verbindung mit § 1 Abs. 1 und 2 EGBGB sowie unserer Pflichten gemäß § 312 e Abs. 1 Satz 1 BGB in Verbindung mit Artikel 246 § 3 EGBGB. Zur Wahrung der Widerrufsfrist genügt die rechtzeitige Absendung des Widerrufs. Der Widerruf ist zu richten an:
WSP Immoconsult
Hauptstrasse 44
40789 Monheim
Email: info@wsp-immoconsult.de
Widerrufsfolgen
Im Falle eines wirksamen Widerrufs sind die beiderseits empfangenen Leistungen zurückzugewähren und ggf. gezogene Nutzungen (z. B. Zinsen) herauszugeben. Können Sie uns die empfangene Leistung ganz oder teilweise nicht oder nur in verschlechtertem Zustand zurückgewähren, müssen Sie uns insoweit ggf. Wertersatz leisten. Dies kann dazu führen, dass Sie die vertraglichen Zahlungsverpflichtungen für den Zeitraum bis zum Widerruf gleichwohl erfüllen müssen. Verpflichtungen zur Erstattung von Zahlungen müssen innerhalb von 30 Tagen erfüllt werden. Die Frist beginnt für Sie mit der Absendung Ihrer Widerrufserklärung, für uns mit deren Empfang.
Besondere Hinweise
Ihr Widerrufsrecht erlischt vorzeitig, wenn der Vertrag von beiden Seiten auf Ihren ausdrücklichen Wunsch vollständig erfüllt ist, bevor Sie Ihr Widerrufsrecht ausgeübt haben.
Ende der Widerrufsbelehrung
Wir weisen auf unsere Allgemeinen Geschäftsbedingungen hin. Durch weitere Inanspruchnahme unserer Leistungen erklären Sie die Kenntnis und Ihr Einverständnis.
Das könnte Ihnen auch gefallen
WSP: Laufkundschaft? Außengastronomie? Mit Film und Fernsehen? Alles ja!
WSP Immoconsult
Herr Philip Wehinger
Hauptstrasse44
40789 Monheim am Rhein
Büro: +49 7181 99 43 766
Mobil: +49 176 41596788
Fax: +49 7181 485768































