Wuppertal:
WSP: Büro- und Geschäftsgebäude mit modernem Flair und Ausblick auf die Schwebebahn***
Objekt-Nr.: 1516

Büro

Aussicht

Eingang

Büro

Empfang

Büro

Büro

Flur

Datenverkabelungsschrank

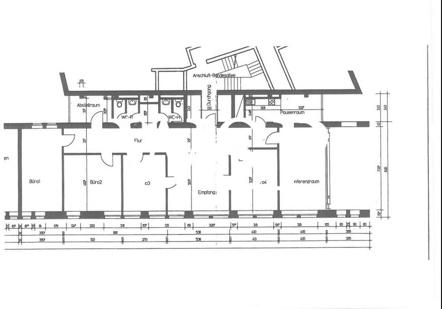
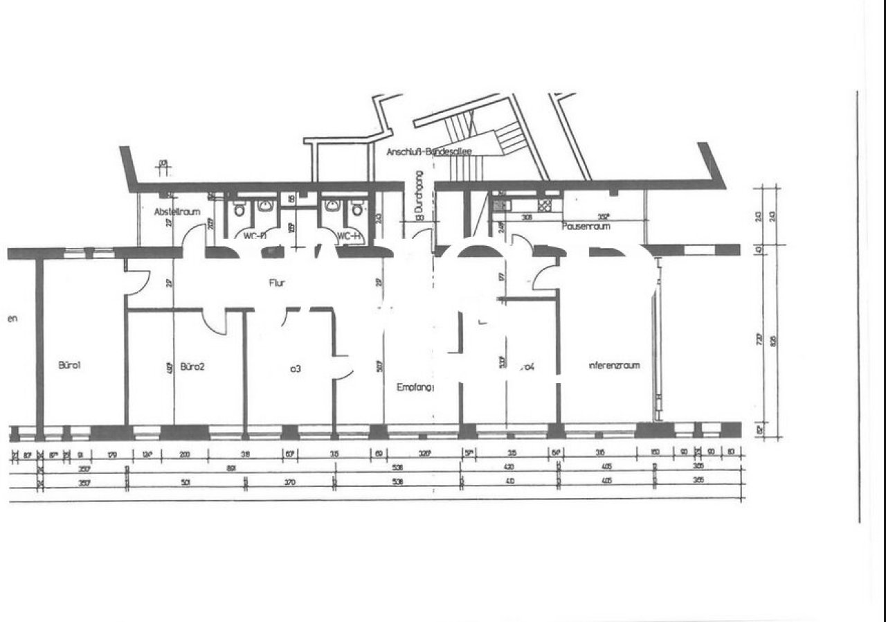
Gundriss










Mietpreis zzgl. NK:
2.532 € pro Monat
Büro-/Praxisfläche ca.:
211 m²
Willkommen in Ihrem neuen Büro- und Geschäftsgebäude, das durch seine perfekte Lage in Wuppertal besticht! Auf einer großzügigen Fläche von 211 m² erstrecken sich sechs lichtdurchflutete Zimmer in der zweiten Etage.
Das im Jahr 1900 errichtete Gebäude bietet Ihnen ein modernes Arbeitsumfeld in einem gepflegten Zustand, das sowohl Funktionalität als auch Ästhetik vereint.
Die Kombination aus Fliesen und Parkett als Bodenbeläge und den stark Tageslichteinlässigen Fenstern verleiht den Räumlichkeiten nicht nur Eleganz, sondern sorgt auch für eine angenehme Akustik und optimale Pflegeleichtigkeit.
Die geschmackvolle Ausstattung und die durchdachte Raumaufteilung schaffen eine inspirierende Atmosphäre für kreative Ideen und produktives Arbeiten.
Lassen Sie sich von der Aussicht auf die berühmte Schwebebahn Wuppertals begeistern, während Sie Ihre Geschäfte erfolgreich besprechen.
Die Highlights dieses Objekts sind unter anderem:
- Aufzug für bequemen Zugang zur Etage
- Hochwertige Bodenbeläge aus Fliesen und Parkett
- Gepflegter Zustand mit moderner Ausstattung
- Helle und freundliche Räume für Ihre Mitarbeiter und Kunden
- Flexible Raumgestaltung für individuelle Bedürfnisse
Nebenkosten: 739 € pro Monat
Provisionspflichtig: nein
Kaution: 3 Monatsmieten Brutto
Letzte Modernisierung/ Sanierung: 2025
Qualität der Ausstattung: normal
Baujahr-Gebäude: 1900
Zimmeranzahl: 6
Etage: 2
Etagenanzahl: 2
Umgebung: Bahnhof, Bus, Einkaufscenter, Einkaufsmöglichkeit, Fitness
Anzahl der Parkflächen: 2 x Außenstellplatz, pro Stück 80 €
Starkstrom: ja
Fahrstuhl: ja
Keller: ja
Barrierefrei: ja
DV-Verkabelung vorhanden: ja
Bodenbelag: Fliesen, Parkett
Zustand: gepflegt
Fußweg zu Öffentl. Verkehrsmitteln: 2 Minute(n)
Fahrzeit zum nächsten Hauptbahnhof: 1 Minute(n)
Fahrzeit zur nächsten BAB: 15 Minute(n)
Fahrzeit zum nächsten Flughafen: 45 Minute(n)
Heizung: Fernwärme
Energieausweistyp: Energieausweis liegt zur Besichtigung vor
Die von uns gemachten Informationen beruhen auf Angaben des Eigentümers bzw. der Eigentümern. Für die Richtigkeit und Vollständigkeit der Angaben kann keine Gewähr bzw. Haftung übernommen werden. Ein Zwischenverkauf bzw. eine Zwischenvermietung und Irrtümer sind vorbehalten. Unser Käuferservice: Finanzierungen und Kredite Vorbereitung der notariellen Abwicklung Sanierung / Renovierung Unser Verkäuferservice Erstellung des Exposés bebilderte Inserate diskrete Vermarktung Markt-Analyse Bonitäts-Prüfung der Käufer Schufa & Creditreform Abfrage Erstellung eines Verkaufsvideos Wichtiger Hinweis: Das Geldwäschegesetz (gem. §2 Abs. 1 Nr.10 GwG) vom 29.11.2011 verpflichtet uns, die Identität des Interessenten festzuhalten. Wir bitten Sie daher, sich beim Ersttermin durch ein gültiges Ausweisdokument auszuweisen. Bei juristischen Personen / Firmen ist der Handelsregisterauszug vorzulegen. Selbstverständlich werden Ihre Daten diskret behandelt. Für Ihr Verständnis danken wir.
Wir weisen auf unsere Allgemeinen Geschäftsbedingungen hin. Durch weitere Inanspruchnahme unserer Leistungen erklären Sie die Kenntnis und Ihr Einverständnis.
Das könnte Ihnen auch gefallen
Direkt am Armin.-T.-Wegner-Platz | Raum für Ihre Ideen
WSP: ***Sie suchen Platz und brauchen einen tollen Blick nach draußen?***
Hochwertige Büroflächen mit bester Anbindung in Langenfeld
WSP Immoconsult
Herr Philip Wehinger
Hauptstrasse44
40789 Monheim am Rhein
Büro: +49 7181 99 43 766
Mobil: +49 176 41596788
Fax: +49 7181 485768



























