Hagen:
Flexible Großflächen mit Entwicklungspotenzial in Hagen-Nord
Objekt-Nr.: 1530

Eingangsbereich

Aussenansicht

Kantine

Büro

Büro

Büro

Büro

Büro

Besprechungsraum

Parkplatz

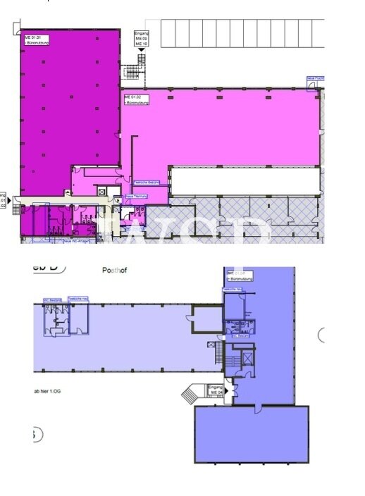
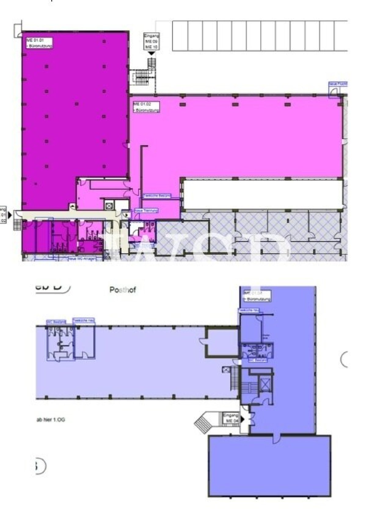
Grundriss

Grundriss












Mietpreis zzgl. NK:
Preis auf Anfrage
Gesamtfläche ca.:
10.100 m²
Büro-/Praxisfläche ca.:
7.600 m²
Die Liegenschaft in der Kabeler Straße 4 in Hagen ist ein großflächiger, flexibel nutzbarer Büro- und Gewerbekomplex mit historischer Nutzung als Unternehmenszentrale eines internationalen Konzerns. Das Objekt wurde jeweils zu Neuvermietungen umfassend überarbeitet und bietet heute moderne, individuell gestaltbare Mietflächen für unterschiedlichste Nutzungskonzepte.
Besonders hervorzuheben ist die hohe Flexibilität der Flächen: Ein Großteil der Einheiten ist aktuell nicht fest unterteilt und kann exakt auf die Anforderungen des Mieters zugeschnitten werden. Dadurch eignet sich die Immobilie sowohl für klassische Bürostrukturen als auch für kombinierte Nutzungskonzepte aus Büro, IT, Schulung oder Service.…
Ein repräsentativer Eingangsbereich mit zentralem Empfang, moderne Aufzugsanlagen sowie ein großzügiges Treppenhaus gewährleisten eine professionelle Erschließung aller Etagen. Ergänzt wird das Angebot durch eine hauseigene Kantine sowie ein voll ausgestattetes Rechenzentrum, das bei Bedarf wieder in Betrieb genommen werden kann.
Die Immobilie verbindet damit Bestandsqualität mit der Möglichkeit zur individuellen Neugestaltung – ein Punkt, den viele Flächen am Markt nicht bieten.
Erdgeschoss (EG)
ca. 550 m² – Büro (ME 01)
ca. 620 m² – Büro (ME 02)
ca. 510 m² – Büro (ME 03)
ca. 510 m² – Büro (ME 04)
ca. 700 m² – Rechenzentrum (ME 06)
👉 Summe EG (ohne Halle): ca. 2.890 m²
1. Obergeschoss (1. OG)
ca. 675 m² – Büro (ME 07)
ca. 460 m² – Büro (ME 08)
ca. 835 m² – Büro (ME 09)
ca. 705 m² – Büro (ME 10)
ca. 250 m² – Büro (ME 11)
👉 Summe 1. OG: ca. 2.925 m²
Weitere Flächen
ca. 513 m² – Büro / Sondernutzung (EG + 1. OG)
ca. 246 m² – Büro (4. OG)
ca. 1.000 m² – Büro (1. OG, B + C)
👉 Summe weitere Flächen: ca. 1.759 m²
Nennen Sie uns Ihren Bedarf - wir kümmern uns um den Rest!
Grundstück ca.: 55.000 m²
Nebenkosten: 4,50 € pro m²
Provisionspflichtig: nein
Kaution: Ab 3 Monatsmieten Brutto
Letzte Modernisierung/ Sanierung: 2025
Baujahr-Gebäude: 1960
Anzahl der Parkflächen: 600 x Außenstellplatz, pro Stück 30 €
Küche: Einbauküche
Starkstrom: ja
Fahrstuhl: ja
Lastenaufzug: ja
DV-Verkabelung vorhanden: ja
Bodenbelag: nach Wunsch, PVC, Teppichboden
Zustand: gepflegt
Endenergieverbrauch Wärme: 100 kWh/(m²*a)
Endenergieverbrauch Strom: 9 kWh/(m²*a)
Fußweg zu Öffentl. Verkehrsmitteln: 5 Minute(n)
Fahrzeit zum nächsten Hauptbahnhof: 15 Minute(n)
Fahrzeit zur nächsten BAB: 5 Minute(n)
Fahrzeit zum nächsten Flughafen: 20 Minute(n)
Befeuerungsart: Gas
Energieausweistyp: Verbrauchsausweis
Baujahr laut Energieausweis: 1999
Die von uns gemachten Informationen beruhen auf Angaben des Eigentümers bzw. der Eigentümern. Für die Richtigkeit und Vollständigkeit der Angaben kann keine Gewähr bzw. Haftung übernommen werden. Ein Zwischenverkauf bzw. eine Zwischenvermietung und Irrtümer sind vorbehalten.
Unser Käuferservice:
Finanzierungen und Kredite
Vorbereitung der notariellen Abwicklung
Sanierung / Renovierung
Unser Verkäuferservice
Erstellung des Exposés
bebilderte Inserate
diskrete Vermarktung
Markt-Analyse
Bonitäts-Prüfung der Käufer
Schufa & Creditreform Abfrage
Erstellung eines Verkaufsvideos
Wichtiger Hinweis:
Das Geldwäschegesetz (gem. §2 Abs. 1 Nr.10 GwG) vom 29.11.2011 verpflichtet uns, die Identität des Interessenten festzuhalten. Wir bitten Sie daher, sich beim Ersttermin durch ein gültiges Ausweisdokument auszuweisen.
Bei juristischen Personen / Firmen ist der Handelsregisterauszug vorzulegen.
Selbstverständlich werden Ihre Daten diskret behandelt. Für Ihr Verständnis danken wir.
Widerrufsrecht
Sie können Ihre Vertragserklärung innerhalb von 14 Tagen ohne Angabe von Gründen in Textform (z. B. Brief, Fax, E-Mail) widerrufen. Die Frist beginnt nach Erhalt dieser Belehrung in Textform, jedoch nicht vor Vertragsschluss und auch nicht vor Erfüllung unserer Informationspflichten gemäß Artikel 246 § 2 in Verbindung mit § 1 Abs. 1 und 2 EGBGB sowie unserer Pflichten gemäß § 312 e Abs. 1 Satz 1 BGB in Verbindung mit Artikel 246 § 3 EGBGB. Zur Wahrung der Widerrufsfrist genügt die rechtzeitige Absendung des Widerrufs. Der Widerruf ist zu richten an:
WSP Immoconsult
Hauptstrasse 44
40789 Monheim
Email: info@wsp-immoconsult.de
Widerrufsfolgen
Im Falle eines wirksamen Widerrufs sind die beiderseits empfangenen Leistungen zurückzugewähren und ggf. gezogene Nutzungen (z. B. Zinsen) herauszugeben. Können Sie uns die empfangene Leistung ganz oder teilweise nicht oder nur in verschlechtertem Zustand zurückgewähren, müssen Sie uns insoweit ggf. Wertersatz leisten. Dies kann dazu führen, dass Sie die vertraglichen Zahlungsverpflichtungen für den Zeitraum bis zum Widerruf gleichwohl erfüllen müssen. Verpflichtungen zur Erstattung von Zahlungen müssen innerhalb von 30 Tagen erfüllt werden. Die Frist beginnt für Sie mit der Absendung Ihrer Widerrufserklärung, für uns mit deren Empfang.
Besondere Hinweise
Ihr Widerrufsrecht erlischt vorzeitig, wenn der Vertrag von beiden Seiten auf Ihren ausdrücklichen Wunsch vollständig erfüllt ist, bevor Sie Ihr Widerrufsrecht ausgeübt haben.
Ende der Widerrufsbelehrung
Wir weisen auf unsere Allgemeinen Geschäftsbedingungen hin. Durch weitere Inanspruchnahme unserer Leistungen erklären Sie die Kenntnis und Ihr Einverständnis.
Das könnte Ihnen auch gefallen
WSP: Inmitten der Dortmunder Innenstadt im 5. OG residieren***
WSP: Attraktive Einzelhandelsfläche in absoluter 1A-Lage – in Gelsenkirchen
WSP Immoconsult
Herr Philip Wehinger
Hauptstrasse44
40789 Monheim am Rhein
Büro: +49 7181 99 43 766
Mobil: +49 176 41596788
Fax: +49 7181 485768















