Gevelsberg:
WSP: Lage, Lage, Lage. Direkt an einem Verkehrsknotenpunkt gelegen

Objekt-Nr.: 1514
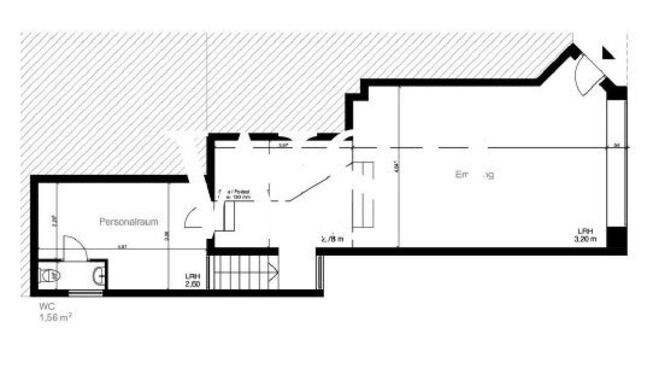
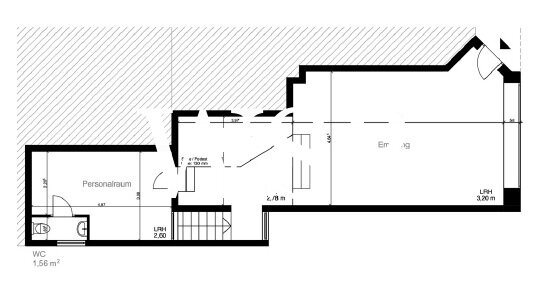
Erdgeschoss

Erdgeschoss

Erdgeschoss

Erdgeschoss

Erdgeschoss

Erdgeschoss

Sozialraum

Sozialraum

Büro im Untergeschoss

Büro im Untergeschoss

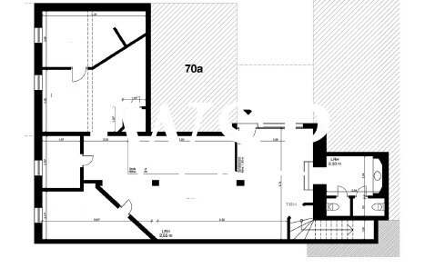
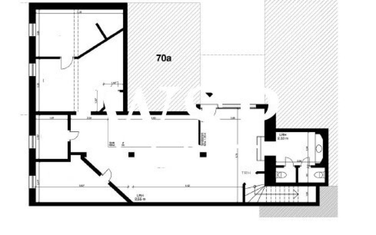
Untergeschoss

Untergeschoss

Außgang Untergeschoss

Außgang Untergeschoss

Grundriss Erdgeschoss

Grundriss Erdgeschoss

Grundriss Untergeschoss

Grundriss Untergeschoss

Erdgeschoss
Erdgeschoss
Erdgeschoss
Sozialraum
Büro im Untergeschoss
Untergeschoss
Außgang Untergeschoss
Grundriss Erdgeschoss
Grundriss Untergeschoss

Mietpreis zzgl. NK:
1.740 € pro Monat

Gesamtfläche ca.:
193 m²

Verkaufsfläche ca.:
180 m²

Objektbeschreibung

Dieses schöne und vielbietende Ladenlokal sucht einen neuen Mieter.

Diese beeindruckende Ladenfläche bietet Ihnen eine hervorragende Gelegenheit, Ihr Gewerbe in einem charmanten, gut gelegenen Gebäude zu präsentieren.

Die Ladenfläche bietet auf zwei Ebenen die Möglichkeit das Gewerbe zu erstrecken. Wobei bei Ebenen Zugänge haben. Dadurch entsteht eine tolle Flexibilität bspw. zwischen Kundenkontakt und separatem Arbeiten.

Das Untergeschoss ist tageslichtdurchflutet.

Weitere Informationen

Schaufensterfront: 8 Meter


Nebenkosten: 300 € pro Monat


Provisionspflichtig: nein


Kaution: 3 Monatsmieten Brutto


Baujahr-Gebäude: 1904


Umgebung: Apotheke, Bus, Einkaufsmöglichkeit, Park


Anzahl der Parkflächen: 3 x Außenstellplatz


Zulieferung: von vorn


Bodenbelag: Fliesen


Zustand: gepflegt


Fußweg zu Öffentl. Verkehrsmitteln: 2 Minute(n)


Fahrzeit zum nächsten Hauptbahnhof: 5 Minute(n)


Fahrzeit zur nächsten BAB: 8 Minute(n)


Fahrzeit zum nächsten Flughafen: 45 Minute(n)


Energieeffizienz

Befeuerungsart: Gas


Energieausweistyp: Bedarfsausweis


Anmerkung

Die von uns gemachten Informationen beruhen auf Angaben des Eigentümers bzw. der Eigentümern. Für die Richtigkeit und Vollständigkeit der Angaben kann keine Gewähr bzw. Haftung übernommen werden. Ein Zwischenverkauf bzw. eine Zwischenvermietung und Irrtümer sind vorbehalten. Unser Käuferservice: Finanzierungen und Kredite Vorbereitung der notariellen Abwicklung Sanierung / Renovierung Unser Verkäuferservice Erstellung des Exposés bebilderte Inserate diskrete Vermarktung Markt-Analyse Bonitäts-Prüfung der Käufer Schufa & Creditreform Abfrage Erstellung eines Verkaufsvideos Wichtiger Hinweis: Das Geldwäschegesetz (gem. §2 Abs. 1 Nr.10 GwG) vom 29.11.2011 verpflichtet uns, die Identität des Interessenten festzuhalten. Wir bitten Sie daher, sich beim Ersttermin durch ein gültiges Ausweisdokument auszuweisen. Bei juristischen Personen / Firmen ist der Handelsregisterauszug vorzulegen. Selbstverständlich werden Ihre Daten diskret behandelt. Für Ihr Verständnis danken wir.

AGB

Wir weisen auf unsere Allgemeinen Geschäftsbedingungen hin. Durch weitere Inanspruchnahme unserer Leistungen erklären Sie die Kenntnis und Ihr Einverständnis.

Ihr Ansprechpartner

WSP Immoconsult
Herr Philip Wehinger

Hauptstrasse44
40789 Monheim am Rhein
Büro: +49 7181 99 43 766
Mobil: +49 176 41596788
Fax: +49 7181 485768


Objekt-Adresse

Mittelstrasse 70
58285 Gevelsberg
Ennepe-Ruhr-Kreis
Nordrhein-Westfalen
Objekt weiterempfehlen

QR-Code