Wuppertal:
***Schöne und gepflegte Büroflächen mitten in der Elberfelder City***
Objekt-Nr.: 1036

Einrichtungsbeispiel

Einrichtungsbeispiel

Ist das vielleicht Ihr nächstes Büro?


Außenansicht

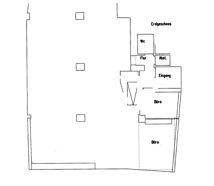
Grundriss






Mietpreis zzgl. NK:
Preis auf Anfrage
Gesamtfläche ca.:
120 m²
Büro-/Praxisfläche ca.:
120 m²
Traumhafte Bürofläche auf einem wunderbaren Standard.
Diese Fläche hat es echt in sich. Äußerst gepflegt, 3 Räume plus einem Empfangsbereich, 2 Toiletten, sofort verfügbar.
Und das ganz in guter Umgebung und in der ersten Etage.
Lassen Sie uns diese Fläche zusammen besichtigen und vereinbaren Sie noch heute einen Termin.
Nebenkosten: 3,60 € pro m²
Provisionspflichtig: nein
Kaution: 3 Monatsmieten brutto
Qualität der Ausstattung: gehoben
Baujahr-Gebäude: 1979
Zimmeranzahl: 4
Etage: 1
Umgebung: Einkaufsmöglichkeit
Küche: Einbauküche
Fahrstuhl: ja
Lastenaufzug: ja
Keller: Abstellraum
DV-Verkabelung vorhanden: ja
Bodenbelag: Laminat
Zustand: gepflegt
Fußweg zu Öffentl. Verkehrsmitteln: 3 Minute(n)
Fahrzeit zum nächsten Hauptbahnhof: 5 Minute(n)
Fahrzeit zur nächsten BAB: 8 Minute(n)
Fahrzeit zum nächsten Flughafen: 45 Minute(n)
Heizung: Fernwärme
Befeuerungsart: Fernwärme
Energieausweistyp: Bedarfsausweis
Baujahr laut Energieausweis: 1979
Die von uns gemachten Informationen beruhen auf Angaben des Eigentümers bzw. der Eigentümern. Für die Richtigkeit und Vollständigkeit der Angaben kann keine Gewähr bzw. Haftung übernommen werden. Ein Zwischenverkauf bzw. eine Zwischenvermietung und Irrtümer sind vorbehalten. Unser Käuferservice: Finanzierungen und Kredite Vorbereitung der notariellen Abwicklung Sanierung / Renovierung Unser Verkäuferservice Erstellung des Exposés bebilderte Inserate diskrete Vermarktung Markt-Analyse Bonitäts-Prüfung der Käufer Schufa & Creditreform Abfrage Erstellung eines Verkaufsvideos Wichtiger Hinweis: Das Geldwäschegesetz (gem. §2 Abs. 1 Nr.10 GwG) vom 29.11.2011 verpflichtet uns, die Identität des Interessenten festzuhalten. Wir bitten Sie daher, sich beim Ersttermin durch ein gültiges Ausweisdokument auszuweisen. Bei juristischen Personen / Firmen ist der Handelsregisterauszug vorzulegen. Selbstverständlich werden Ihre Daten diskret behandelt. Für Ihr Verständnis danken wir.
Wir weisen auf unsere Allgemeinen Geschäftsbedingungen hin. Durch weitere Inanspruchnahme unserer Leistungen erklären Sie die Kenntnis und Ihr Einverständnis.
Das könnte Ihnen auch gefallen
***Büro- oder Praxisfläche inmitten der Essener Innenstadt***
***Mitten in der Fußgängerzone von Barmen***
WSP: Laufkundschaft? Außengastronomie? Mit Film und Fernsehen? Alles ja!
WSP Immoconsult
Herr Philip Wehinger
Hauptstrasse44
40789 Monheim am Rhein
Büro: +49 7181 99 43 766
Mobil: +49 176 41596788
Fax: +49 7181 485768


























